项目介绍
[MEILONGKEY(美朗奇)少儿培训学校]
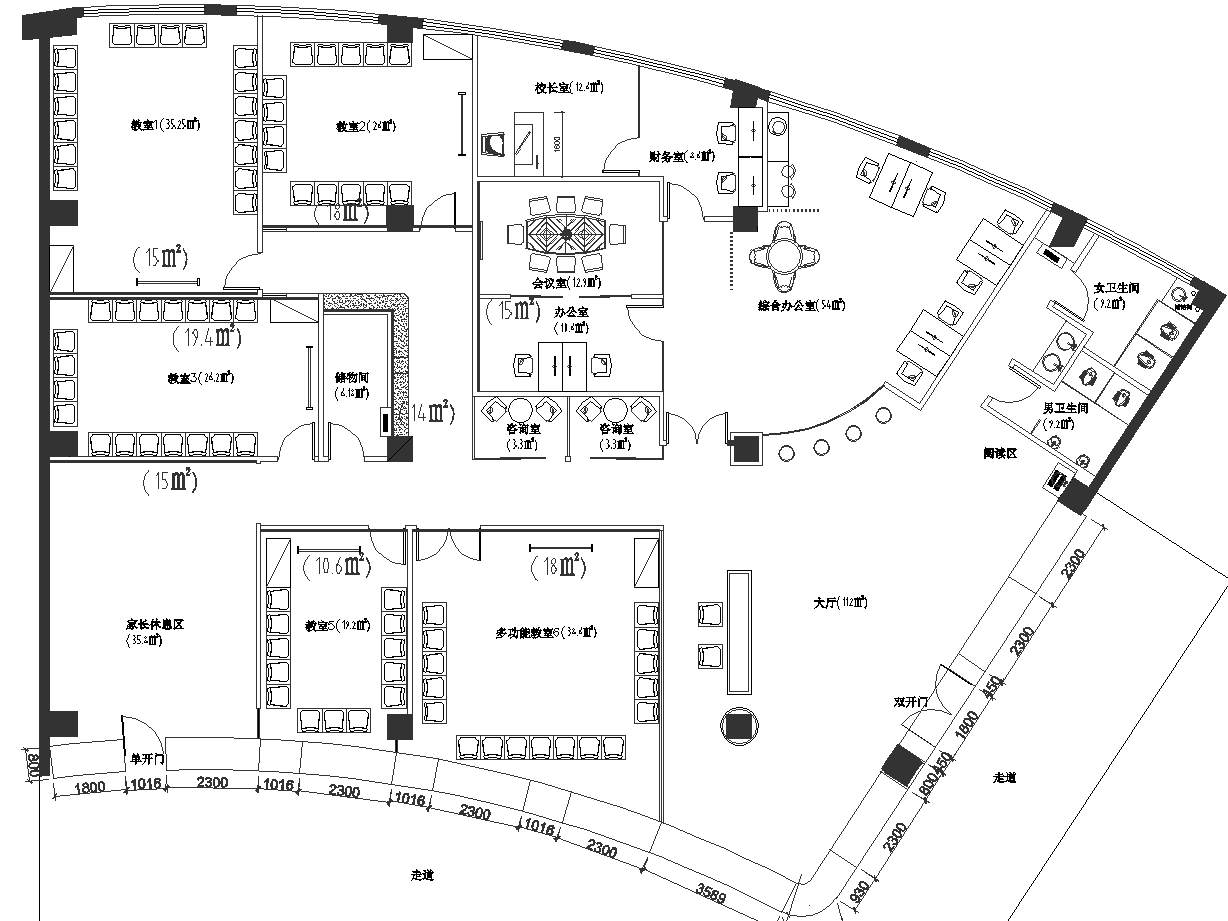
美朗奇,MEILONGKEY,北仓设计MEILONGKEY(美朗奇)少儿培训学校是一所专门针对青少年英语培训的一所学校。面积:600㎡,风格:现代风格。工程造价:120万。竣工时间:2018.12.08。
商业案例
在做儿童空间之前我们要思索此空间的功能属性,做为青少年培训学校,既要考虑空间不能太过花哨,又能体现英语的国际性。
空间以现代风格为基调,以8度灰为主色进行大面积基调构成。
顶部避免采用晃眼的射灯之类的光源,以照明舒适的灯光片为照明光源,满足教室照明需求。
蓝、黄、绿、紫四种不同情绪的色块铺设其中,提升空间活泼感。
类于盒子的属性更能激发小朋友的创造力。
空间相互借光、相互穿插、的借力功能让空间更加通透、更多的视线延伸感。
蓝色LG塑胶地板可以有效的调节各色彩中的影响,且保护小朋友的安全。
空间玻璃让家长在走廊外就可以通过玻璃隔断和监控系统了解小朋友学习的情况。
教室中的动感区,一块软垫即可适合玩耍、阅读、游戏。
教室纯色墙面为平淡的教室空间带来一抹阳光。而各类造型的门能让小朋友更直观的认识属于自己的学习空间。


