项目介绍
[淮南览山名苑售楼部]
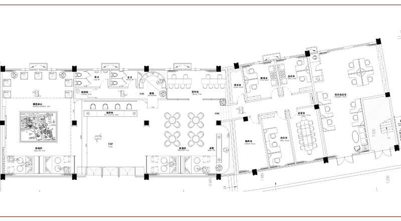
览山名苑售楼部,北仓设计,魏双览山名苑售楼部1#楼已建部分商业的一层,建筑轴线(1-A)—(2-D)。1、室内总建筑面积:487㎡,其中营销中心300㎡;一层南侧办公区187㎡;2、建筑外观建筑面积:80㎡;室外广场景观面积:350㎡。设计风格:现代轻奢。
商业案例
Name | 项目名称:览山名苑售楼部
Area | 项目面积:917㎡
Location |项目地点:淮南市
Client | 项目业主:览山名苑营销部
Interior Design | 室内设计:魏双
Installation & Exhibition | 装置与陈列:北仓设计事务所
Construction Side | 施工单位:自装











