淮南幕唯(聚点)私人影院 - 商业案例 - | 一种全新的生活方式

项目介绍

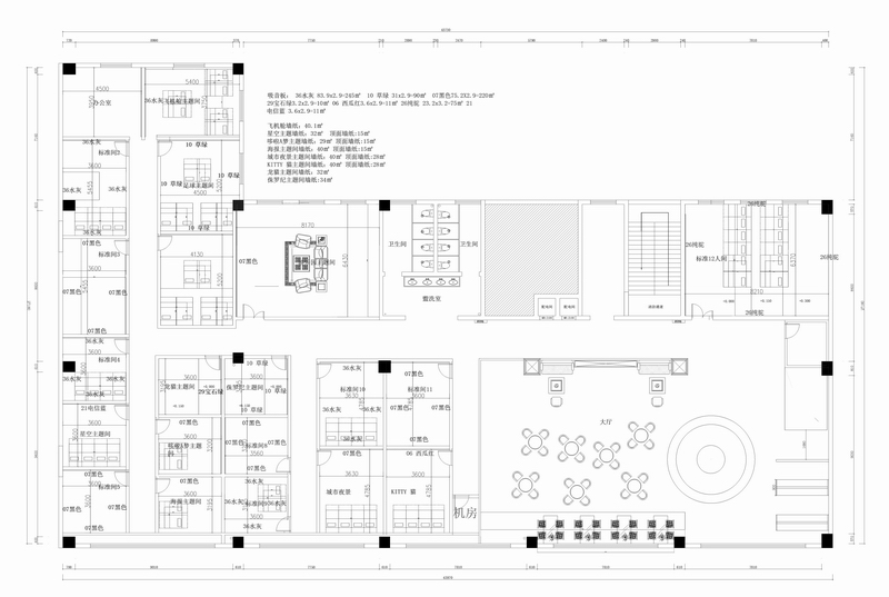
[淮南幕唯(聚点)私人影院]

淮南幕唯(聚点)私人影院
淮南幕唯(聚点)私人影院2016年6月

商业案例